华球足球 SHANGHAI YOULI WATER-STORING PIPES CO. ,LTD 021-57394889 021-57394899
  • 请选择一级分类
  • 国标GB工业用管道系统
  • 国际GB给水用管道系统
  • 美标ANSI SCH80/40管道系统
  • 膜管及组件系列
  • 电子级水用(洁净型)UPVC管道系统
  • 电力电缆、通讯光缆用保护套管系列
  • SJS双金属复合管
  • 衬塑(ABS)复合钢管系统
  • GB/ANSI 阀门系列
  • 板材焊条 其他配件
  • 容器、槽罐、非标件定制
  • {{item.name}}
  • {{item.name}}
  • {{item.name}}
热门关键词:UPVC管材|UPVC管件|UPVC阀门|CPVC管材|CPVC管件|CPVC阀门|SCH80 UPVC管材|SCH80 UPVC管件|ANSI阀门|SCH40 UPVC管材|SCH80 CPVC管材|SCH80 CPVC管件
CPVC SCH80大小头 PRODUCT
首页 > CPVC SCH80大小头
CPVC SCH80大小头PRODUCT CENTER
CPVC SCH80大小头


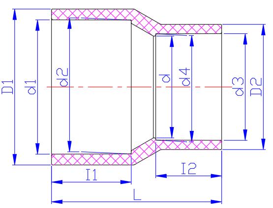
SCH80大小头.jpg


Size

D

D1

d1

d2

d3

d4

I

I1

L

L1

3/4"✕1/2"

35.5

29

17

26.87

26.57

21.54

21.23

27.5

24

58.5

1"✕1/2"

43

30

17

33.65

33.27

21.54

21.23

30

24

63

1"✕3/4"

45

35.5

22

33.65

33.27

26.87

26.57

30

27.5

67

14分之1.png"✕1/2"

53

29.5

17

42.42

42.04

21.54

21.23

34

24

70

14分之1.png"✕3/4"

53

35

22

42.42

42.04

26.87

26.57

34

27

73

14分之1.png"✕1"

54

45

29

42.42

42.04

33.65

33.27

34

30

77

12分之1.png"✕1/2"

59

30

17

48.56

48.11

21.54

21.23

37

24

65

12分之1.png"✕3/4"

59

35

22

48.56

48.11

26.87

26.57

37

27

68

12分之1.png"✕1"

59

43

29

48.56

48.11

33.65

33.27

37

30

71

12分之1.png"✕14分之1.png"

59

52

38

48.56

48.11

42.42

42.04

37

34

75

2"✕1/2"

72

30

17

60.63

60.17

21.54

21.23

40

24

69

2"✕3/4"

72

35

22

60.63

60.17

26.87

26.57

40

27

72

2"✕1"

72

43

29

60.63

60.17

33.65

33.27

40

30

75

2"✕14分之1.png"

72

52

38

60.63

60.17

42.42

42.04

40

34

79

2"✕1-1/2"

72

59

44

60.63

60.17

48.56

48.11

40

37

82

22分之1.png"✕12分之1.png"

88

59

44

73.38

72.85

48.56

48.11

47

37

90

22分之1.png"✕2"

88

72

55

73.38

72.85

60.63

60.17

47

40

93

3"✕12分之1.png"

105

59

44

89.31

88.70

48.56

48.11

50

37

94

3"✕2"

105

72

55

89.31

88.70

60.63

60.17

50

40

97

3"✕22分之1.png"

105

88

67

89.31

88.70

73.38

72.85

50

47

104

4"✕2"

132

72

55

114.76

114.10

60.63

60.17

60

40

108

4"✕22分之1.png"

132

88

67

114.76

114.10

73.38

72.85

60

47

115

4"✕3"

132

105

82

114.76

114.10

89.31

88.70

60

50

118

5"✕4"

162

132

106

141.81

141.00

114.76

114.10

70

60

150

6"✕4"

191

132

106

168.83

168.00

114.76

114.10

80

60

180

6"✕5"

191

162

133

168.83

168.00

141.81

141.00

80

70

170

单位为毫米


采购:CPVC SCH80大小头*表示必填

华球足球(中国) 阿里巴巴
华球足球(中国)产品 合作代理 最新咨询 工程业绩 技术服务 华球足球(中国)实力 关于华球足球(中国) 联系华球足球(中国)
copyright@2021 华球足球
销售热线:021-57394889,021-57394899,13611884555
地址:上海市金山区廊下镇漕廊公路7515号
关键词:UPVC管材|UPVC管件|UPVC阀门|CPVC管材|CPVC管件|CPVC阀门|SCH80 UPVC管材|SCH80 UPVC管件|ANSI阀门|SCH40 UPVC管材|SCH80 CPVC管材|SCH80 CPVC管件